
Missionné par l’entreprise Eiffage Génie Civil pour une mission de méthode et synthèse, j’ai pu réaliser de nombreux documents sur ce chantier.
Le chantier comprend la réhabilitation de 8 bâtiments existants et la construction de 14 bâtiments neufs.
Le groupement, composé des entreprises Demathieu Bard (mandataire) et Eiffage Génie civil, a remporté ce marché pour une mission de conception et réalisation, la difficulté étant de réhabiliter la station tout en maintenant son fonctionnement.
Vous trouverez ci-dessous quelques exemples des différents documents que j’ai produits sur ce chantier.
Cartouche dynamique
Réalisation d’un cartouche, composé d’un bloc dynamique, avec une zone plan de masse et un paramètre permettant de sélectionner la zone.
Les sous-traitants peuvent ainsi facilement repérer et indiquer la zone concernée par leurs travaux.
Modification automatique du cartouche
Il nous a été demandé de modifier certains logos sur le cartouche pour toutes les futures diffusions.
J’ai alors créé un programme qui vérifie, à chaque ouverture d’un dessin, si le bloc cartouche inséré dans le dessin a été modifié et qui le modifie automatiquement si ça n’est pas le cas.
Plan d’installation de chantier
Les différents indices du PIC représentent les différentes phases du chantier.
Plan d’implantation des pieux extérieures
Il a été nécessaire de réaliser un plan des pieux à l’extérieur des bâtiments pour différents ouvrages, notamment les canalisations en béton armé, la difficulté étant d’éviter les réseaux existant tout en respectant la distance maximum entre pieux.
Suite à la vérification de l’implantation des pieux au niveau de recépage, jusqu’à 5 mètre de profondeur, il a fallu redéfinir rapidement et précisément les dimensions de chaque Bonna.
Phasage coactivité
Plusieurs entreprises intervenant simultanément sur le chantier (Génie Civil, réseaux, épurateur et exploitant), il était nécessaire de réaliser un phasage, sur trois mois, afin de planifier la coactivité.
Ce phasage définit les différentes zones de travail et de stockage des intervenants.
Il définit aussi les différentes circulations pour les véhicules, le cheminement piéton dans les zones de travaux avec EPI et le cheminement dans la station sans EPI.
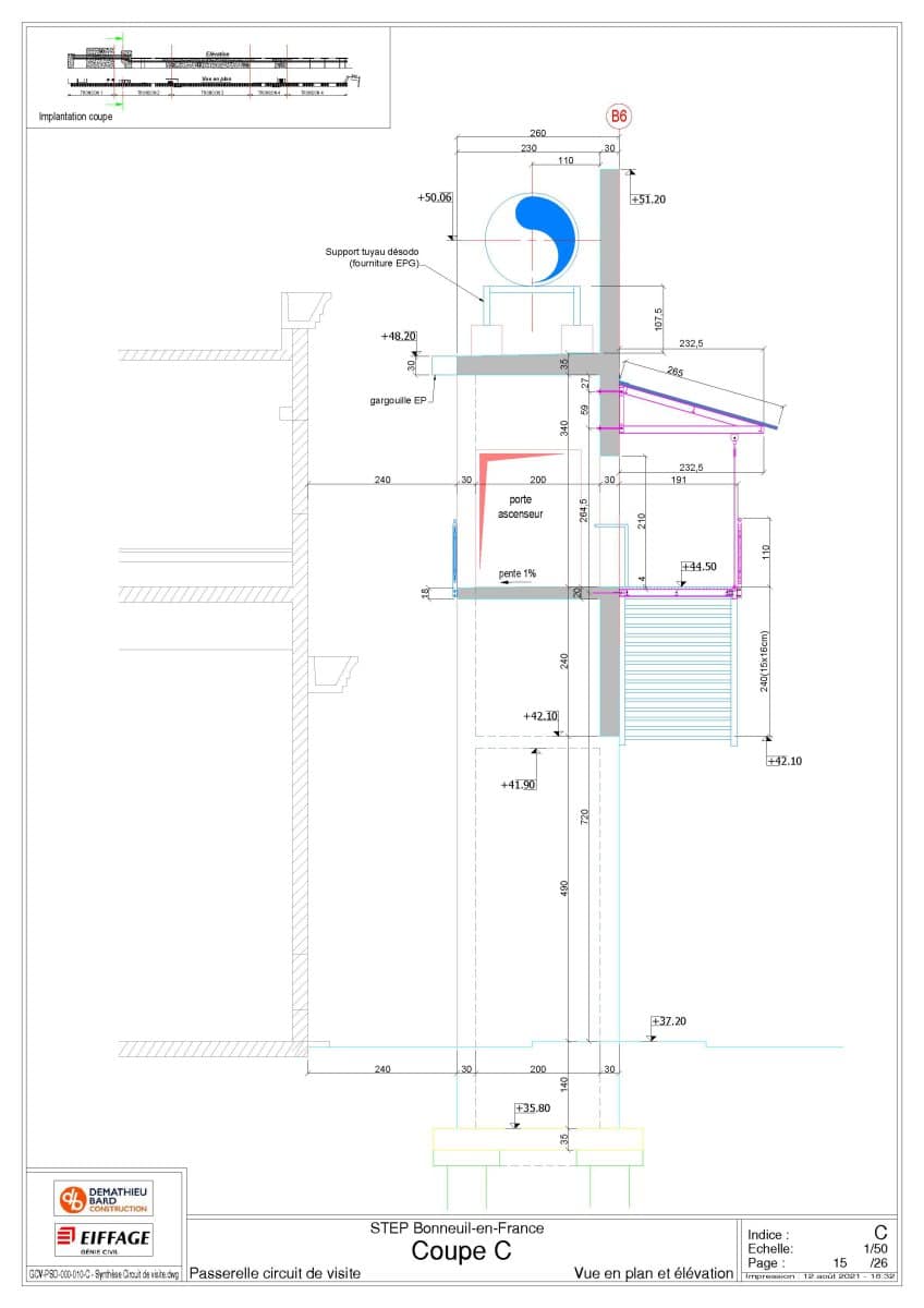
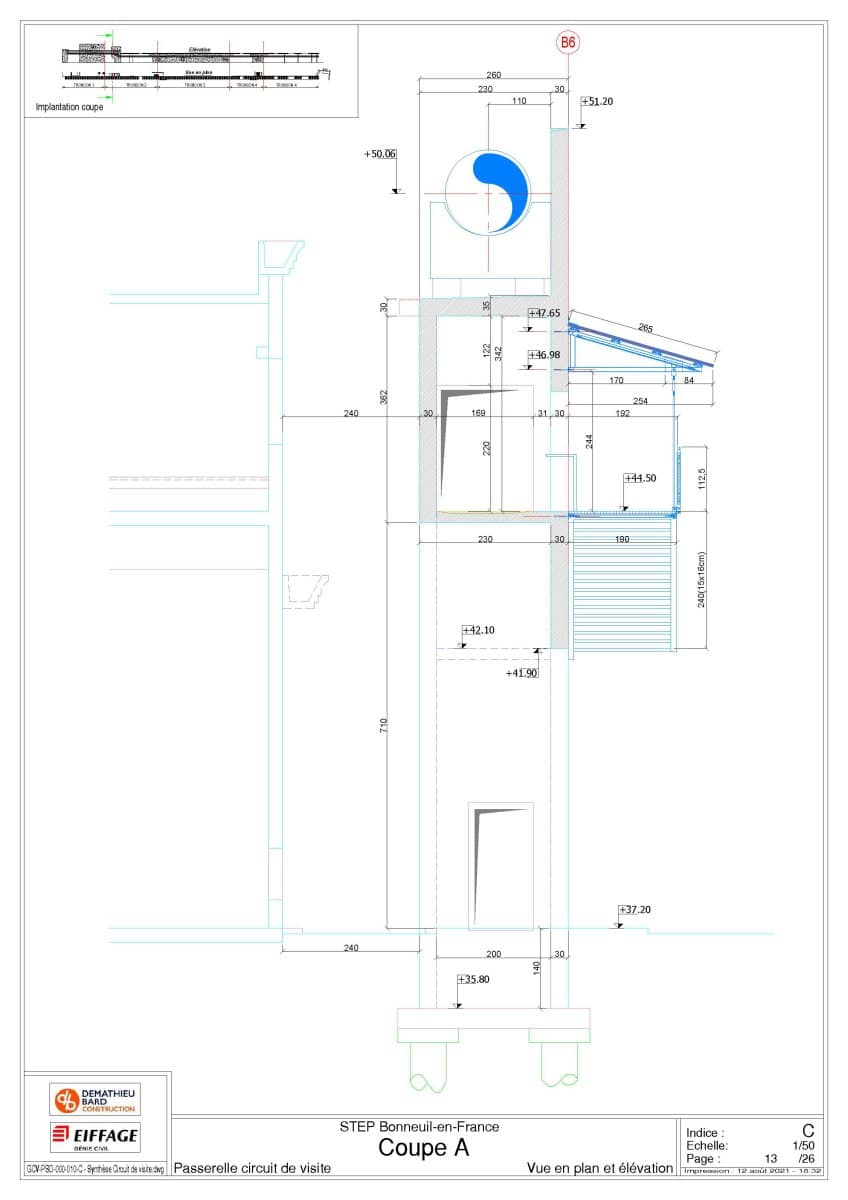
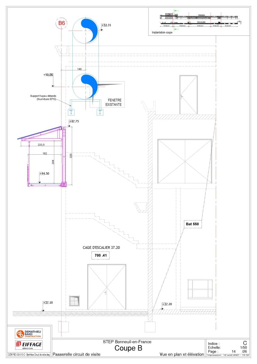
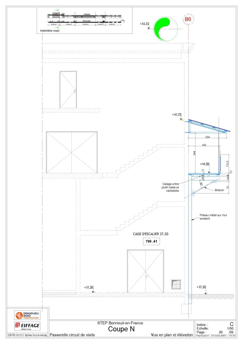
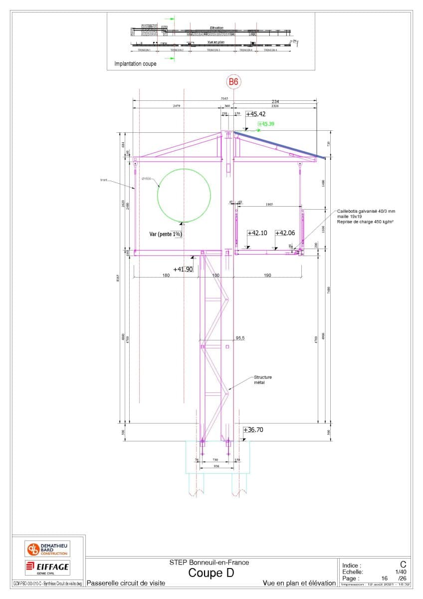
passerelle du circuit de visite
La station accueillant souvent des écoliers, elle possède un circuit de visite, comprenant, entre autres, une passerelle métallique de 220 m de long, raccordant plusieurs bâtiments existants et neufs.
Plan de synthèse de la passerelle du circuit de visite
Réalisation d’un plan de détail pour consultation des entreprises.
Vérifications des plans exécution.
Ouvrage d’arrivée
L’ouvrage d’arrivée des eaux de la station se compose de trois parties : la partie existante, à réhabiliter, le Bypass, pour diriger les eaux vers la station de Bonneuil ou vers celle d’Achère et l’ouvrage de connexion à l’ovoïde existant.
L’ouvrage de connexion a été préfabriqué en béton banché au niveau du TN, puis gruté au fond du blindage, sur le radier déjà réalisé.
Levage de l’ouvrage de connexion
Pour implanter les douilles de levage, il a fallu modéliser en 3D le préfabriqué afin de déterminer son centre de gravité.
Plan de surface pour calcul des Eaux Pluviales
Réalisation d’un plan de surface des différents revêtements du site dans le but de déterminer les dimensions du bassin tampon (pour le stockage des eaux pluviales lors des fortes pluies).
Il était nécessaire de diviser le métré des différents revêtements pour les parties nord et sud du chantier.
Grâce au logiciel StormACAD Métré il a été possible de réaliser très rapidement ce plan.
Plans de localisation et métré du plan de voirie
Grâce aux différents logiciels StormACAD Métré, il a été possible de calculer rapidement les différentes surfaces (enrobé, Evergreen, béton balayé etc), les linéaires de bordure et le nombre d’avaloirs.
Réhabilitation du Local Électrique en accès à la passerelle et au SAS Boues
Réalisation d’un plan de synthèse décrivant les travaux de réhabilitation du bâtiment Poste électrique en bâtiment d’accès à la passerelle et à la toiture du futur SAS de récupération des boues.


